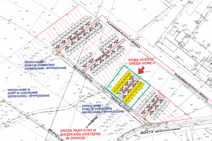
Domy jednorodzinne Green Home w Świebodzicach
Inwestycja Green Home II to wyjątkowa i nowoczesna architektura, która dedykowana jest przede wszystkim osobom ceniącym sobie optymalnie zaaranżowaną przestrzeń, gdzie podstawowym kryterium jest funkcjonalność i wygoda. Kolejnym niebagatelnym atutem osiedla Green Home będzie jego lokalizacja w bezpośrednim sąsiedztwie Parku Sportowego wodnego centrum rekreacji, szkoły, przedszkoli, komunikacji miejskiej i sklepów.
Prezentujmy Państwu 14 domów szeregowych na osiedlu z pełną infrastrukturą techniczną w postaci gotowych dróg, sieciami kanalizacji sanitarnej, wodociągowej, gazowej i elektrycznej.
W domach o numerach 14-19 oraz 21-26 zaprojektowano podjazd z miejscem postojowym, a w bryle budynku znajdował się będzie jednostanowiskowy garaż, natomiast w domach o numerach 20 oraz 27 podjazd z miejscem postojowym. Przygotowany będzie również wygrodzony i rozplantowany humusem ogród pod realizację zieleni.
Termin realizacji: czerwiec 2026 rok.
Przyjmujemy rezerwacje
Obecnie przyjmujemy kupony rezerwacyjne na niniejsze nieruchomości:
Pliki do pobrania:
Kupon rezerwacyjny (docx)
Kupon rezerwacyjny (pdf)
Prospekt informacyjny dewelopera
Pliki do pobrania:
Prospekt informacyjny - Domy jednorodzinne Green Home (PDF)
Cennik domów i aktualny stan dostępności
Lokalizacja




